
13938517980
河南省焦作市武陟縣河朔大道與興業路交叉口向東200米路南鄭北智谷產業園501
www.mszj201.cn


13938517980
河南省焦作市武陟縣河朔大道與興業路交叉口向東200米路南鄭北智谷產業園501
www.mszj201.cn

數控龍門加工中心的水平螺桿,長度超過4米的都需要做支撐,水平安裝螺桿的支撐機構 ,包括彈簧式、液壓式、氣動式等,但還沒有掛壁式安裝螺桿支撐機構的成熟方案,更多行業技術請關注微 機械公社圈平安裝螺桿的支撐機構雖然種類繁多,但是不能直接套用到掛壁式安裝螺桿的機構中,原因主要是掛壁式安裝螺桿的空間十分狹小,這就要求我們做此類型的支撐機構要精小實用。

因此急需一種技術方案來解決現有技術中存在的問題。

龍門加工中心螺桿的掛壁式支撐裝置設計

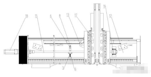
橫梁12、支撐座壓板13和螺桿15,螺桿15水平設置在橫梁12的側面中心線處,螺桿15的上下兩側橫梁12上分別設有滑座導軌14,在螺桿15的中心位置的橫梁12下邊緣處設有彈簧座,彈簧座的一側橫梁12上設有豎向的導軌10,彈簧座上設有彈簧4,彈簧4上側連接有滾輪固定座3,在滾輪固定座3上設有滾輪1,滾輪1與螺桿15線接觸,滾輪固定座3固定在支架6上,支架6通過滑塊9與橫梁12上的導軌10滑動連接,橫梁12上設有限位塊11,其設置在滾輪固定座3的上側;

支撐座壓板13通過滑塊連接在橫梁的滑座導軌14上。 滾輪固定座3上設有滾輪軸2,滾輪1安裝在滾輪軸2上。 滾輪2為至少2個,滾輪2與螺桿15構成等腰三角形受力機構。彈簧座上設有彈簧安裝軸5,彈簧4安裝在彈簧安裝軸5上。支架6的上端設有軸承8。此處支架6上先是安裝上軸承軸7然后軸承8安裝在軸承軸7上,優選地軸承為滾針軸承。

支撐座壓板13下緣在水平方向上低于軸承8所在平面,并且支撐座壓板13與軸承8均設置在同一豎直平面內。螺桿15的兩端通過軸承座16安裝在橫梁12上。 滑座導軌14上設有滑座17,滑座17上設有螺母。螺桿15與滑座17上的螺母配合連接。

支撐座壓板13的下側為梯形。本支撐裝置在正常狀態下是直接對螺桿15進行支撐的。電機18帶動螺桿15轉動,螺桿15通過螺母帶動滑座17運動,本支撐裝置在滑座17經過時支撐座壓板13壓下軸承8,

此時,軸承8帶動支架6整體向下移動,支架6帶動滾輪固定座3向下移動,此時滾輪1離開螺桿15,產生螺母通過空間,在此時,滑座17本身就具有固定間距的作用,其會代替支撐裝置對螺桿15進行支撐,當滑座17運動過去以后,軸承8沒有支撐座壓板13的壓力,就會在彈簧4的作用下回復到正常狀態。

效果
結構簡單、占用空間小、成本低、安全可靠,具有廣泛的市場應用價值和實用性,能夠為龍門加工中心的螺桿提供精準的定位,進而提高加工精度。